森塚第15マンション603号室

| 物件名 | 森塚第15マンション603号室 |
|---|---|
| 号室 | 603 |
| 物件種別 | マンション |
| 新築年月 | 平成30年3月 |
| 所在地 | 佐世保市島瀬町3番11号 |
| 交通 | 西肥バス 島瀬バス停徒歩1分 |
| 家賃 | 63,000円 |
| 共益費 | 4,000円 |
| 敷金 | 1ヶ月 63,000円 |
| 礼金 | 1ヶ月 63,000円 |
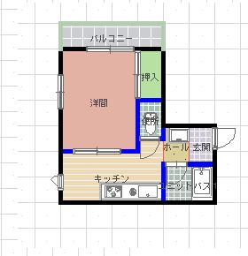
| 間取り | 1K(11.8洋・5K) |
| 物件状況 | 入居中(11/10退去予定) |
| 駐車場 | 無 |
| 火災保険料 | 19,000円(2年間) |
| エレベーター | 無 |
| 詳細情報 | 中心部に位置し買物、交通便利です!! ゴミ回収は民間ゴミ回収業者に依頼している為、指定ゴミ袋が不要で毎日ゴミが出せます。 |
| 資料 | IMG_9336.JPG |
| こだわりアイコン | バストイレ別 オートロック 室内洗濯機置き場 クローゼット 都市ガス シャワー フローリング 照明器具 エアコン 給湯 IHコンロ 敷地内ゴミ庫 日当たり良好 宅配BOX 追い焚き機能 モニター付きインターホン ウォシュレット |

